Zwei Reihenhauszeilen mit jeweils fünf exklusiven Townhouses

Großzügige Privatgärten mit Südterrassen sowie abgeschirmte Dachterrassen

6–7 Zimmer

Ca. 141–170 m² Wohnfläche

Bezugsfertig ab März 2026

Riedberg (Frankfurt am Main)

TOP 10 – Nothing less

Die beiden Reihenhauszeilen aus jeweils fünf Eigenheimen bilden zusammen das Wohnkonzept Top 10. In diesem Exposé stellen wir Ihnen die nördliche Reihe der Eigenheime vor, die den ersten von zwei Bauabschnitten bildet.

Die Dachaufsicht zeigt: Großzügige Privatgärten mit Südterrassen sowie abgeschirmte Dachterrassen setzen das faszinierende Wohnerlebnis
der eigenen „vier Wände“ im Außenbereich fort. – Freiheit pur!

Im Inneren gibt die durchdachte Grundrissplanung auf drei Ebenen jedem Familienmitglied viel Raum für die individuelle Entfaltung. Bis zu drei Bäder und
sieben Zimmer auf rund 170 Quadratmeter Wohnfläche sind selbst am Riedberg mit seinen vielfältigen Wohnkonzepten eine Besonderheit.
Entdecken Sie auf den nächsten Seiten Ihr persönliches Traumhaus!

SIE HABEN FRAGEN?

Erhalten Sie unverbindlich weitere Informationen. Kontaktieren Sie uns telefonisch unter:

Ausstattung

Wohnen in Ihrem exklusiven Townhouse

Bei der Auswahl der Ausstattung haben wir großen Wert auf Ihren Komfort und die hohe Qualität der Produkte gelegt.

Allgemeine Ausstattungsdetails:

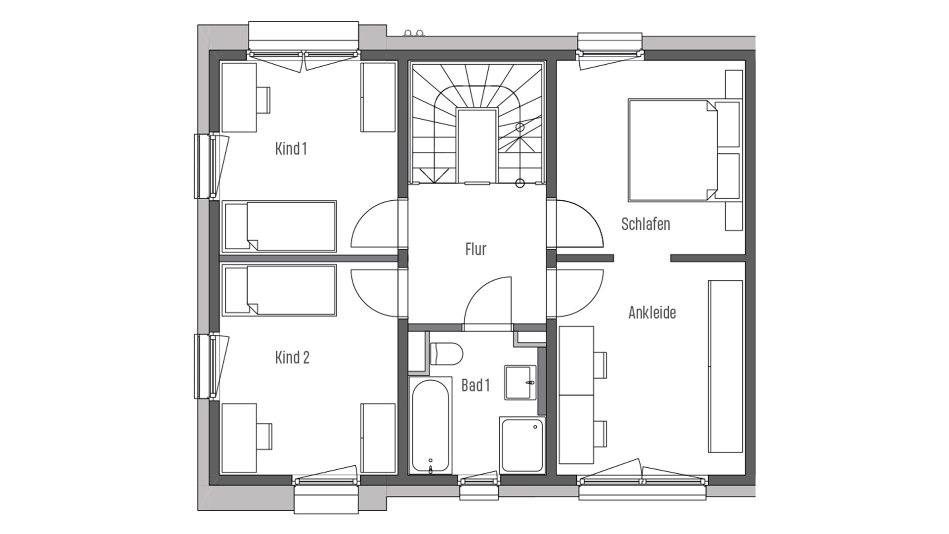
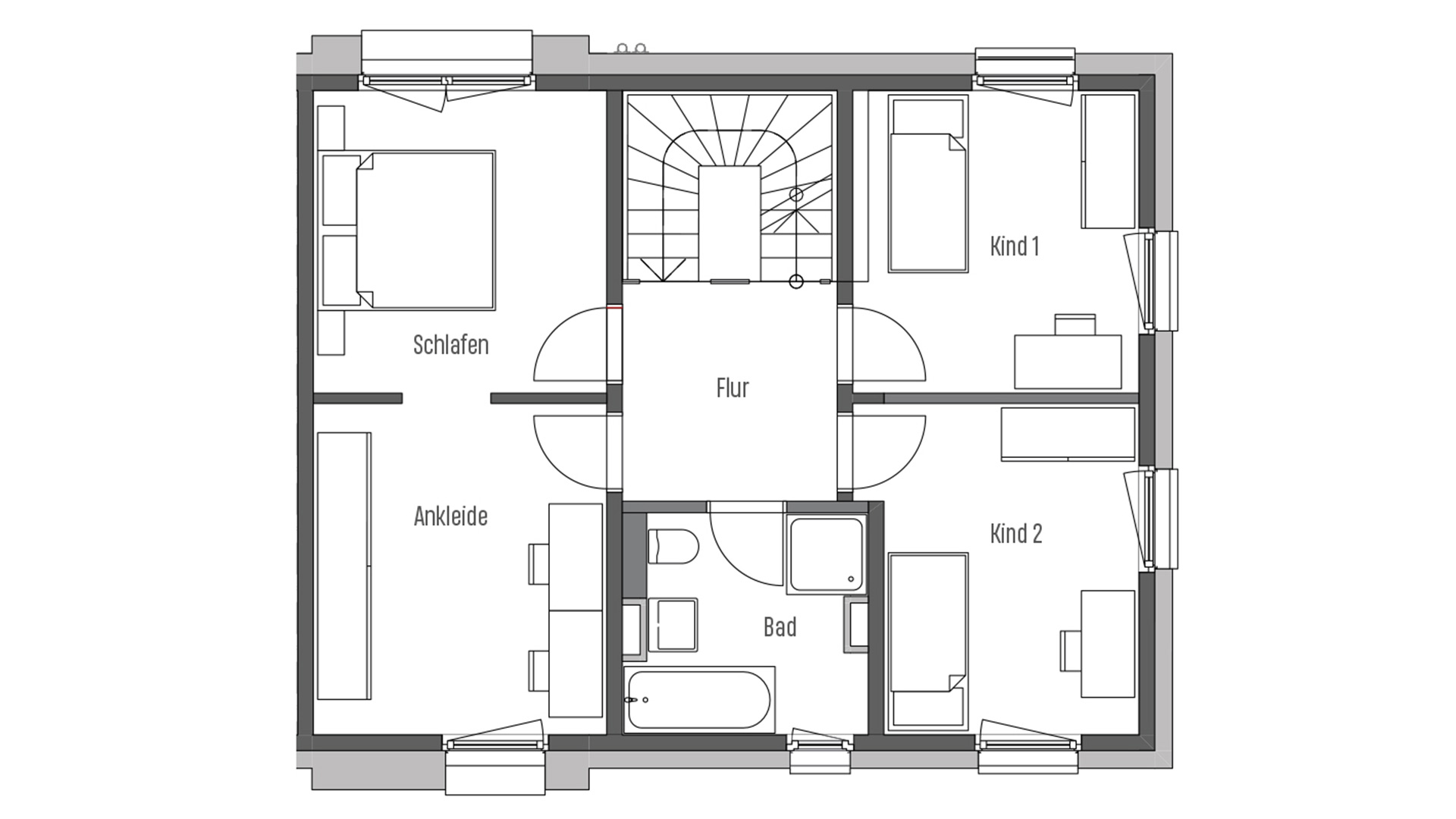
Grundrisse – TOP 10 Nordreihe

Top 10 N1

TOP 10 N2

TOP 10 N3

TOP 10 N5

Grundrisse – TOP 10 Südreihe

TOP 10 S1

TOP 10 S2

TOP 10 S5

Kontaktieren Sie uns!

TOP 10 – Nothing less

Wohn(t)raum in Riedberg

Schreiben Sie uns gerne eine Nachricht




    Wir verwenden die im Kontaktformular angeforderten Daten und Informationen vertraulich und ausschließlich dafür, Sie zu dem auf dieser Internetseite beworbenen Projekt zu kontaktieren und zu informieren. Die Datenschutzhinweise habe ich zur Kenntnis genommen.